
Industry
Architecture
Service
Drafting
Phase
Existing
Location
Washington, DC
Date

01
Project Overview
A detailed as-built documentation project capturing the existing conditions of a residential property to support planning, permitting, and future renovation efforts.
01
Project Overview
A detailed as-built documentation project capturing the existing conditions of a residential property to support planning, permitting, and future renovation efforts.
02
Scope of Work
ArchRecon conducted an on-site survey to document the residence through verified field measurements, photographic reference, and existing condition analysis prior to drafting.
02
Scope of Work
ArchRecon conducted an on-site survey to document the residence through verified field measurements, photographic reference, and existing condition analysis prior to drafting.
03
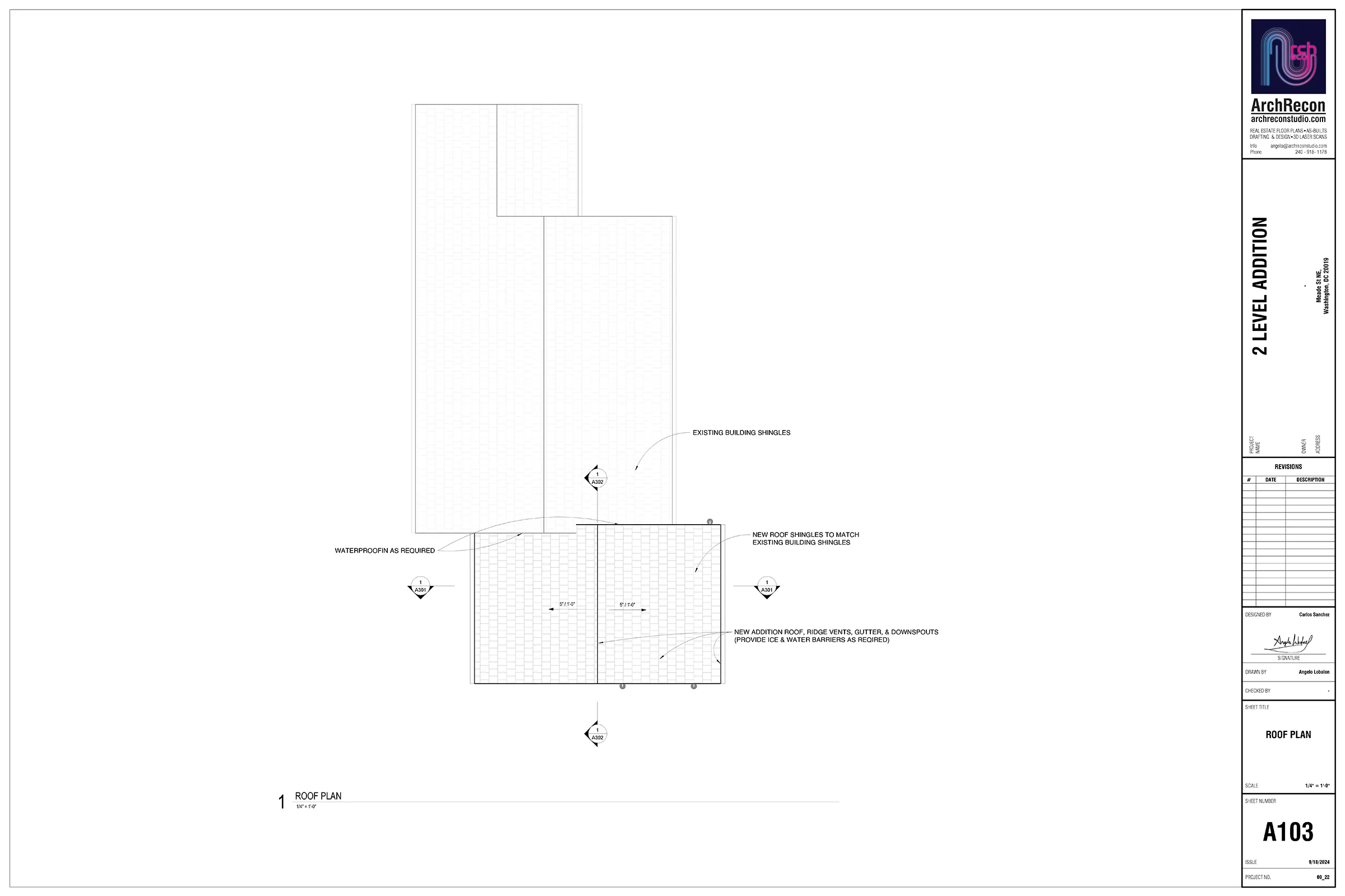
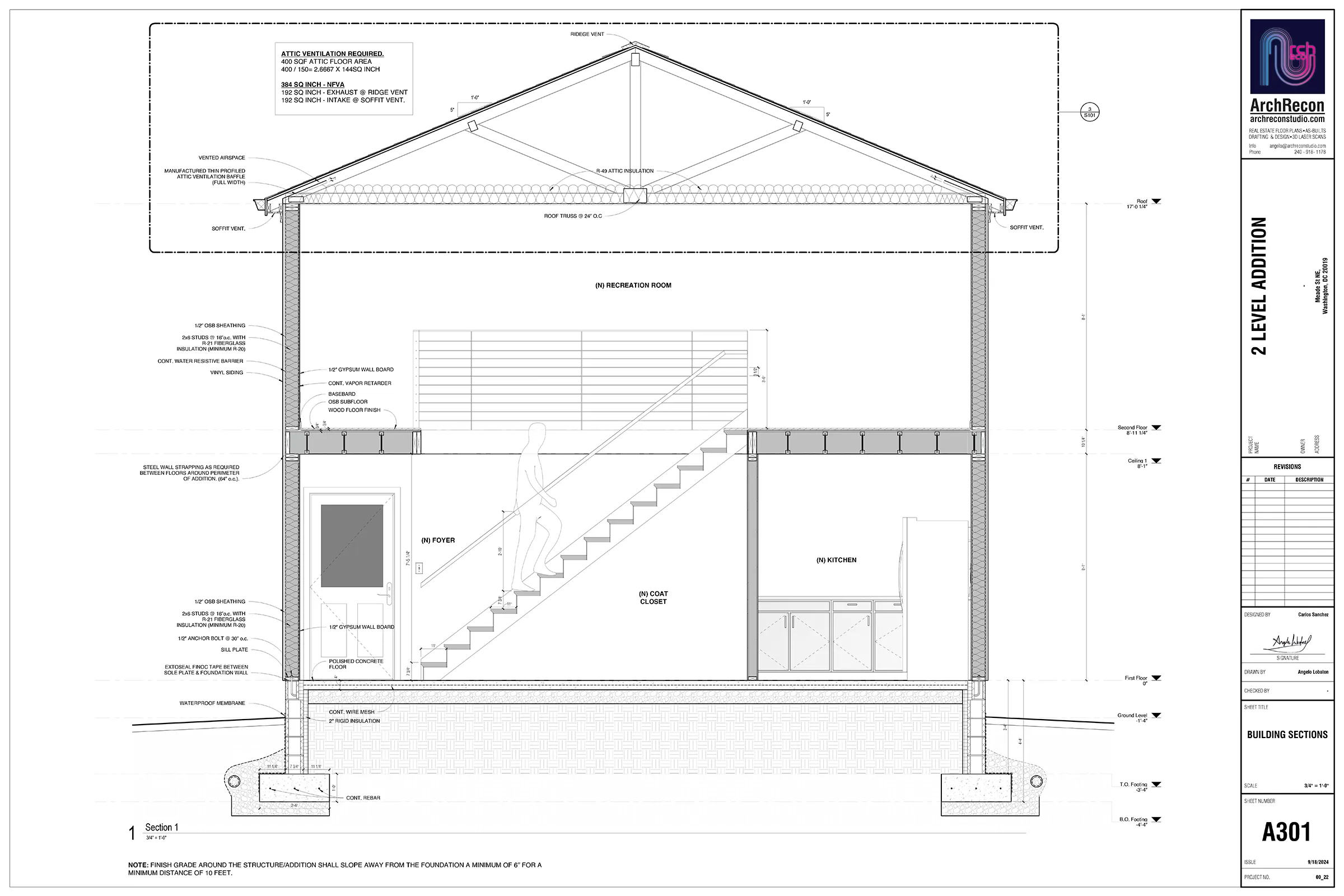
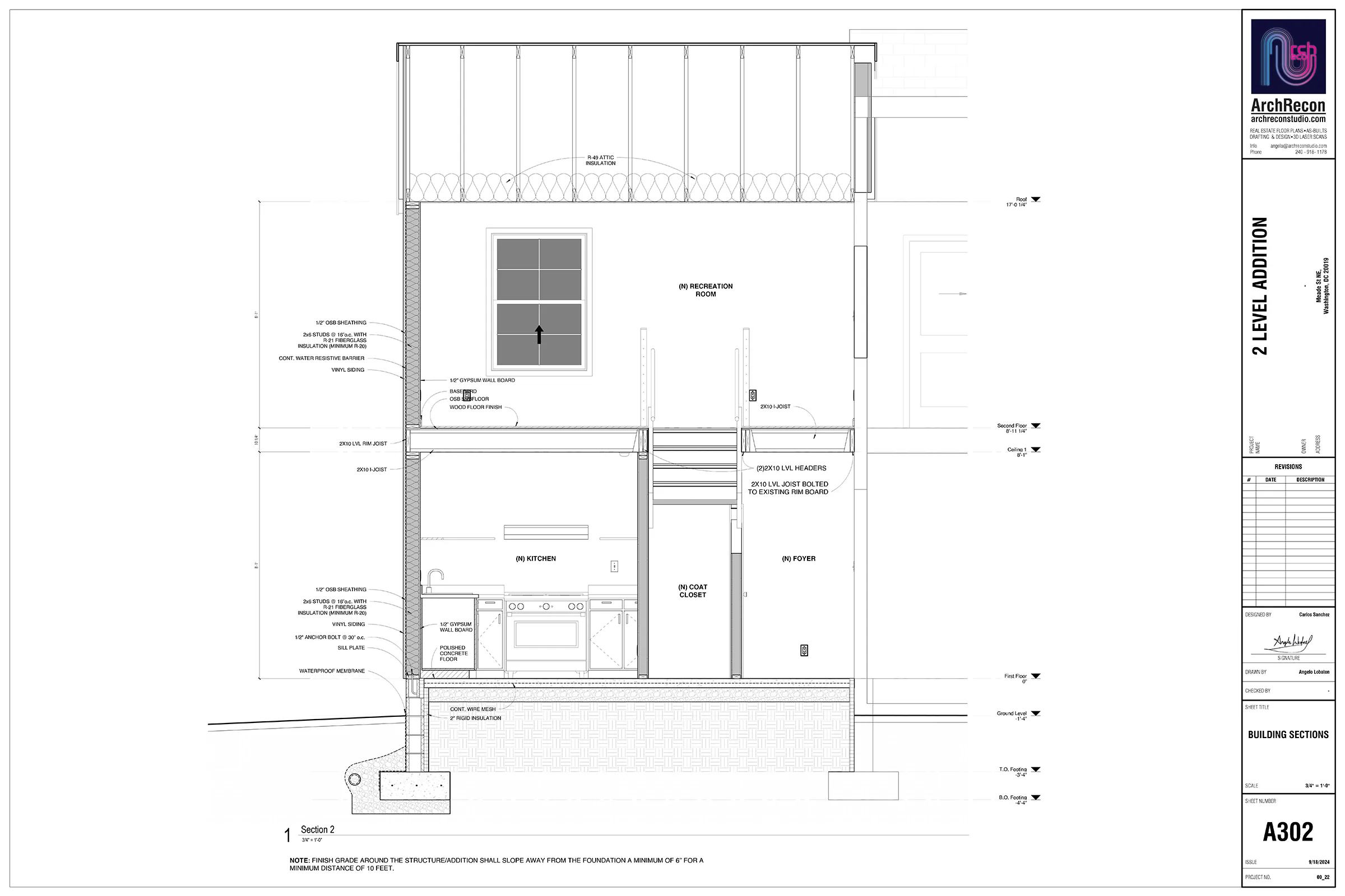
Documentation Output
Deliverables include accurate floor plans, roof plans, sections, and exterior elevations reflecting the home’s current configuration and constraints.
03
Documentation Output
Deliverables include accurate floor plans, roof plans, sections, and exterior elevations reflecting the home’s current configuration and constraints.
04
Technical Emphasis
Consistent lineweights, standardized notation, and coordinated sheets ensure the documentation is dependable for architects, engineers, and contractors moving forward.
04
Technical Emphasis
Consistent lineweights, standardized notation, and coordinated sheets ensure the documentation is dependable for architects, engineers, and contractors moving forward.
Get Your Free Consultation Today!
Discover how our architectural scanning and 3D modeling can elevate your next project.
Get Your Free Consultation Today!
Discover how our architectural scanning and 3D modeling can elevate your next project.
Get Your Free Consultation Today!
Discover how our architectural scanning and 3D modeling can elevate your next project.









